CALZADA DE LOS JINETES #103
Arboledas, Estado de México
Características generales:
Local comercial o corporativo en inmejorable calle comercial, en zona de alto poder económico. Edificio completamente terminado en el 2018.
-
Estacionamiento privado y para clientes.
-
Totem para publicidad con vista a Calzada de los Jinetes.
-
Conserje 24/7.
-
Roof garden de 270m2 con lona fija que puede ser utilizado como comedor, área de esparcimiento o para cualquier otra actividad.
-
Sanitarios para dama y caballero en cada piso.
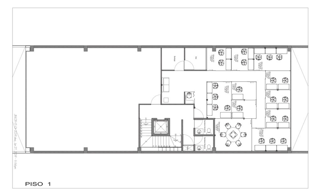
Único de esta propiedad:
Se entrega con mobiliario ideal para un coworking u oficina. Se entrega con:
-
Mobiliario para 80 personas que incluye silla, escritorio individual, archivero y bote de basura.
-
Divisiones para oficinas independientes desde 1 a 10 personas.
-
Espacio y mesa para sala de juntas.
-
Cableado y antenas para internet.
-
Cámaras de seguridad.
-
Bodega.
-
Site.
-
Instalación para acceso biométrico.
Disponibilidad actual:










